Das Objekt
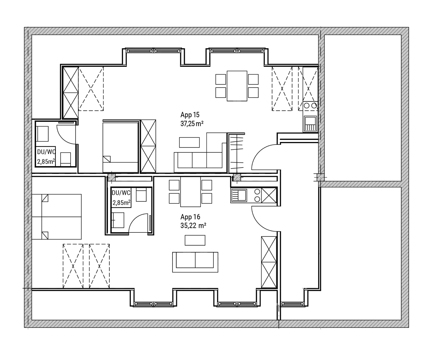
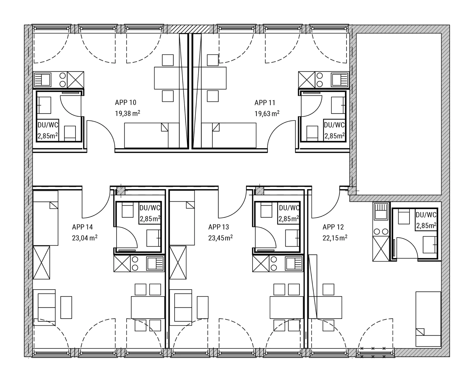
Aus dem bestehenden Bürogebäude entsteht ein vollständig kernsaniertes Energieeffizienzhaus mit insgesamt 16 hochwertigen Wohneinheiten.
Das Objekt wird im Rahmen eines Globalverkaufs angeboten und eröffnet dem Käufer attraktive steuerliche Vorteile – unter anderem durch gezielte Abschreibungen gemäß § 7 (5a) und § 7b AfA sowie durch Förderprogramme der KfW.
Der Erwerb erfolgt schlüsselfertig. Auf Wunsch übernehmen wir zudem die vollständige Verwaltung, sodass Sie als Käufer von Beginn an von maximaler Entlastung und Planungssicherheit profitieren.
Verkauf und Sanierung werden aus einer Hand realisiert und in engem Austausch mit dem zukünftigen Eigentümer abgestimmt. So stellen wir sicher, dass das volle Potenzial der Immobilie konsequent ausgeschöpft wird. Um sämtliche Vorteile dieses Konzepts optimal zu nutzen, beginnt die Sanierung unmittelbar nach dem notariellen Ankauf.
Dieses Projekt richtet sich an Investoren, die auf der Suche nach einem renditestarken, steuerlich attraktiven Immobilieninvestment sind und gleichzeitig Wert auf hochwertige Umsetzung und langfristige Werthaltigkeit legen. Haben wir Ihr Interesse geweckt? Wir freuen uns auf Ihre Kontaktaufnahme.
Projektzeitraum
ab Verkauf
Ausbauzeitraum
vrsl. 9 – 12 Monate
Gesamtfläche
ca. 405 m²
Wohnfläche pro Einheit
16,4 – 40,1 m²
Ort
München, Sendling
Status
zu verkaufen

















